Thiết Kế Nhà Mái Thái 1 Mặt Tiền Phong Cách Tân Cổ Điển – Không Gian Sống Hoàn Hảo
Thiết kế nhà mái Thái phong cách tân cổ điển luôn là sự lựa chọn hoàn hảo cho những ai yêu thích sự sang trọng, tinh tế nhưng không kém phần gần gũi. Với mặt tiền đẹp mắt, kết hợp với công năng tối ưu và không gian xanh thoáng đãng, ngôi nhà này không chỉ đáp ứng nhu cầu sinh hoạt mà còn là nơi thư giãn lý tưởng cho gia đình.

1. Đặc điểm kiến trúc nhà mái Thái phong cách tân cổ điển
Phong cách tân cổ điển:
- Kiến trúc tân cổ điển nổi bật với các chi tiết phào chỉ tinh tế, cột trụ vững chắc và đường cong mềm mại trên mái vòm, cửa sổ.
- Tone màu chủ đạo: trắng kem, vàng nhạt, hoặc xám, kết hợp với vật liệu cao cấp như đá hoa cương, gỗ tự nhiên và kính.
Nhà mái Thái 1 mặt tiền:
- Thiết kế mái Thái tạo vẻ ngoài thanh thoát, giúp ngôi nhà trở nên cao ráo và sang trọng hơn.
- Hệ mái được bố trí hợp lý để đảm bảo khả năng chống nóng, chống thấm và thoát nước hiệu quả.

2. Công năng tối ưu cho không gian sống
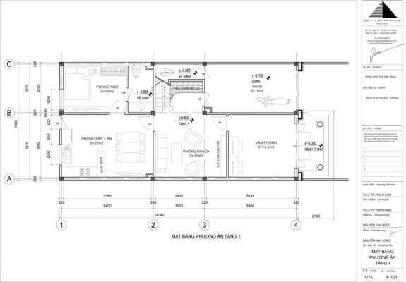
Tầng 1: Không gian sinh hoạt chung
- Phòng khách:
- Là trung tâm của tầng 1, được thiết kế rộng rãi, thoáng đãng với cửa kính lớn.
- Sử dụng nội thất tân cổ điển như sofa bọc da cao cấp, bàn trà bằng đá cẩm thạch và đèn chùm sang trọng.
- Phòng bếp và phòng ăn:
- Khu bếp liên thông với phòng ăn, sử dụng hệ tủ gỗ tự nhiên với mặt đá, đảm bảo sự tiện nghi và thẩm mỹ.
- Cửa sổ lớn hoặc giếng trời giúp không gian luôn sáng sủa, thông thoáng.
- Phòng ngủ:
- Bố trí gần phòng khách, phù hợp cho người lớn tuổi với nội thất gọn gàng nhưng không kém phần sang trọng.
- Phòng vệ sinh chung:
- Đầy đủ tiện nghi, đảm bảo yếu tố sạch sẽ và thoải mái.
- Cầu thang:
- Lan can cầu thang làm bằng sắt uốn hoa văn cổ điển hoặc gỗ tự nhiên, kết hợp ánh sáng từ giếng trời làm điểm nhấn.

Tầng 2: Khu vực nghỉ ngơi riêng tư
- 2 phòng ngủ (vệ sinh chung):
- Thiết kế tinh tế với cửa sổ lớn hoặc ban công, tối ưu hóa ánh sáng tự nhiên.
- Nội thất đơn giản nhưng sang trọng, bao gồm giường tủ, bàn làm việc và kệ trang trí.
- 1 phòng ngủ khép kín (vệ sinh riêng):
- Là phòng ngủ chính với diện tích rộng, tích hợp khu vực thay đồ và vệ sinh riêng.
- Ban công riêng tạo không gian thư giãn.
- Phòng làm việc:
- Bố trí gần cửa sổ để đón ánh sáng tự nhiên, tạo không gian yên tĩnh, tập trung.

Tầng 3: Không gian đa năng và thư giãn
- Phòng thờ:
- Nằm ở vị trí cao nhất, trang trọng với nội thất gỗ tự nhiên chạm khắc tinh xảo.
- Hướng đặt bàn thờ theo phong thủy, đảm bảo không gian yên tĩnh.
- Sân phơi:
- Được che chắn cẩn thận bằng lam hoặc mái kính, đảm bảo tiện lợi và thẩm mỹ.
- Sân thượng:
- Không gian mở, kết hợp trồng cây xanh, tiểu cảnh và góc thư giãn.
- Phòng thể dục thể thao:
- Được trang bị các dụng cụ hiện đại, không gian thoáng đãng, phù hợp cho các hoạt động rèn luyện sức khỏe.

3. Điểm nhấn trong thiết kế không gian xanh
- Sân vườn trước nhà: Là nơi bố trí tiểu cảnh với cây xanh, đài phun nước nhỏ hoặc ghế ngồi thư giãn.
- Giếng trời: Được tích hợp ở khu vực cầu thang, giúp ánh sáng và không khí lưu thông tốt.
- Ban công xanh: Kết hợp trồng cây hoặc hoa trang trí, tạo điểm nhấn cho mặt tiền và mang lại cảm giác gần gũi với thiên nhiên.
- 4. Lợi ích khi sở hữu ngôi nhà mái Thái tân cổ điển
- Sang trọng và bền vững: Phong cách tân cổ điển kết hợp mái Thái không chỉ đẹp mà còn tối ưu hóa về công năng và độ bền.
- Thoáng mát và thân thiện môi trường: Thiết kế xanh giúp ngôi nhà luôn thoáng đãng, mát mẻ, tiết kiệm năng lượng.
- Không gian sống lý tưởng: Mỗi khu vực trong nhà đều được bố trí hài hòa, phù hợp với nhu cầu của các thành viên trong gia đình.
Liên hệ ngay để sở hữu ngôi nhà mơ ước
Với nhiều năm kinh nghiệm trong lĩnh vực thiết kế nhà đẹp, chúng tôi tự tin mang đến cho bạn một không gian sống hoàn hảo, đáp ứng mọi nhu cầu về thẩm mỹ và công năng.😊

